Ref. 1067 96 m2 3 2 1
venta: 169.000 

Vivienda para reformar. Requiere de REFORMA INTEGRAL.

Situada en Avenida Cataluña 90, una de las arterías principales de la ciudad de Zaragoza. Tiene una ubicación fantástica.

Es una zona consolidada con todo tipo de servicios cerca, parada de autobús, tiendas, comercios, grandes supermercados, restaurantes, centro médico, farmacia, colegios..
Una zona en pleno crecimiento y expansión con excelente conexión a las salidas de la ciudad por la Z30 y Z40 y a 10 minutos del Pilar.

¡Muy próximo al Parque de la Azucarera!

La vivienda se encuentra en un edificio de diez alturas con ascensor a cota 0 y sin barreras arquitectónicas.

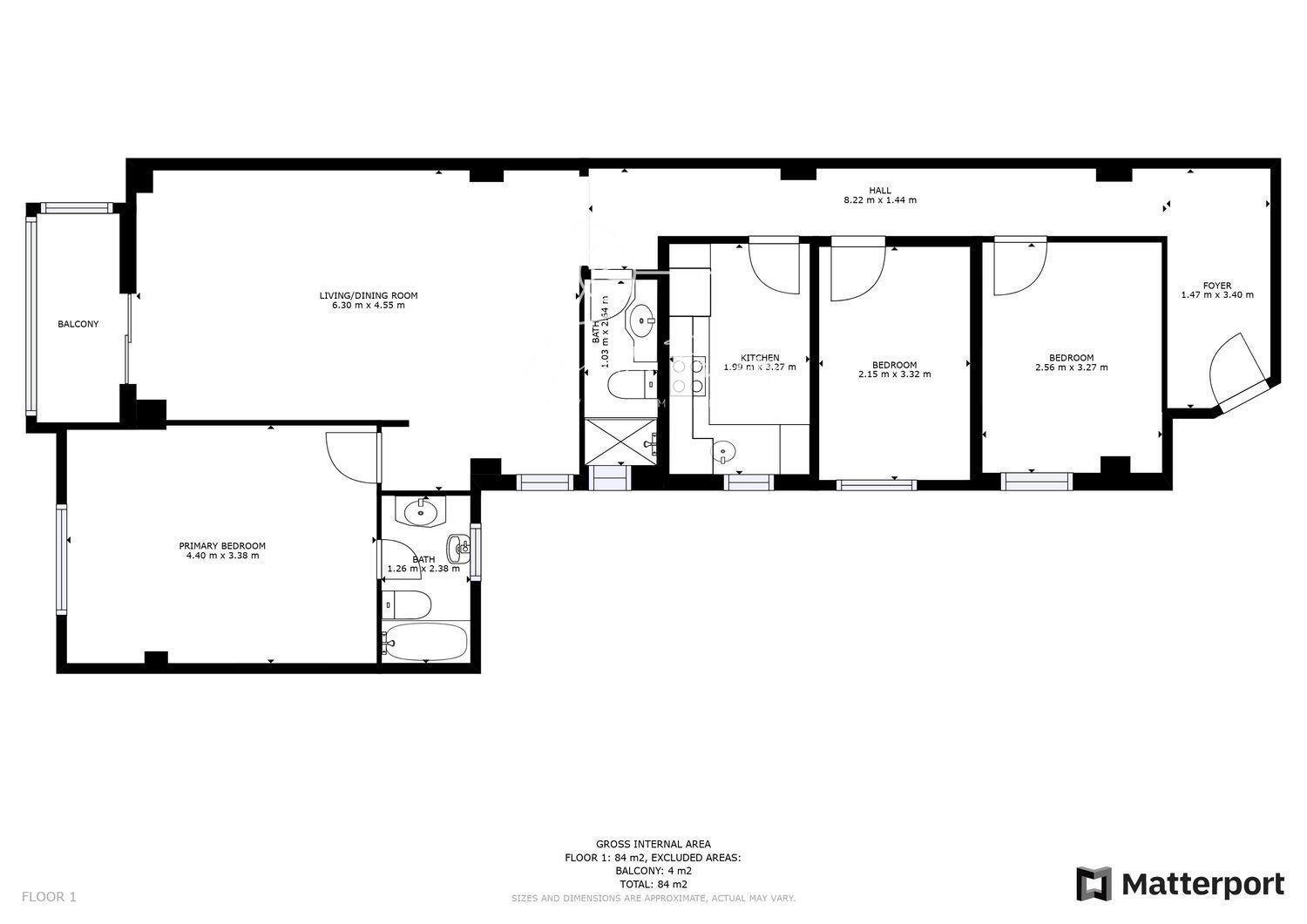
La distribución es ESTUPENDA y muy cómoda (VER PLANO), consta de 3 dormitorios de buen tamaño, y dos cuartos de baño, uno de ellos en suite con el dormitorio principal, EXTERIOR. Amplio salón con galería acristalada mediante cerramiento.
La cocina es independiente aunque en el proyecto de reforma se puede abrir al salón ganando espacio y restando metros de pasillo a la vivienda.

¡Te asesoramos en las diferentes OPCIONES DE REFORMA que tiene esta fabulosa vivienda!

Si quieres un piso para REFORMARLO A TU GUSTO, llama AHORA para reservar tu visita presencial.

Contacta también vía WhatsApp (ANA) y sigue nuestra cuenta en Instagram: @ana_da_frutos.


Índice de alquiler

Precio Venta 169.000 €
Precio/m² 1.760
Gastos de comunidad 72 €
Año de construcción 1968
Construidos 96 m2
Útiles 87 m2
Dormitorios 3
Baños 2
Altura/Planta 1
Orientación NORTE, OESTE
Estado A reformar
Ascensor
Calificación Energética (E) VER
La dirección del inmueble es aproximada.
Contáctanos

Si deseas más información sobre esta propiedad, por favor, rellena el formulario.

 Sí, he leído y/o acepto las Condiciones de uso y la Política de privacidad